Mẫu mặt bằng biệt thự 2 tầng tối ưu công năng
Trong lĩnh vực kiến trúc nhà ở, biệt thự 2 tầng luôn là lựa chọn hàng đầu của những gia chủ yêu thích sự riêng tư, tiện nghi và một không gian sống đẳng cấp. Việc sở hữu một mẫu mặt bằng biệt thự 2 tầng hợp lý không chỉ quyết định đến tính thẩm mỹ mà còn ảnh hưởng trực tiếp đến chất lượng sinh hoạt của cả gia đình.
Một bản vẽ mặt bằng khoa học sẽ giúp tối ưu hóa công năng sử dụng, đón được nhiều gió trời và ánh sáng tự nhiên, đồng thời thể hiện được gu thẩm mỹ tinh tế của gia chủ. Hiểu được điều đó,Nhà Huế với đội ngũ kiến trúc sư giàu kinh nghiệm sẽ cùng bạn khám phá những phương án thiết kế mặt bằng biệt thự 2 tầng ấn tượng nhất hiện nay, từ phong cách Modern Luxury sang trọng đến những mẫu nhà vườn, nhà ống hiện đại, đáp ứng mọi nhu cầu về diện tích và số lượng phòng ốc.
.jpg)
1. Mặt bằng biệt thự 2 tầng phong cách Modern Luxury
Phong cách Modern Luxury đang làm mưa làm gió trong làng kiến trúc những năm gần đây. Khi áp dụng phong cách này vào mặt bằng biệt thự 2 tầng phong cách Modern Luxury, các kiến trúc sư hướng đến sự tinh giản nhưng không kém phần đẳng cấp.
Đặc trưng của lối thiết kế này là sự kết hợp hài hòa giữa các đường nét kiến trúc khỏe khoắn, dứt khoát với chất liệu cao cấp như kính cường lực, đá marble, gỗ tự nhiên và kim loại. Mặt bằng thường được tổ chức theo nguyên tắc mở, xóa nhòa ranh giới giữa không gian bên trong và bên ngoài, tạo cảm giác rộng rãi và thoáng đãng tối đa.
Mặt bằng biệt thự 2 tầng hiện đại và sang trọng..jpg)
Tầng 1 có bố cục mạch lạc với trục không gian mở nối liền phòng khách và phòng ăn, bao bọc bởi hệ thống dải sân vườn chữ U giúp tối ưu tầm nhìn, ánh sáng và thông gió tự nhiên.
Các khu vực công năng như gara, phòng bếp, không gian văn phòng lượn tròn độc đáo và một phòng ngủ trệt (rất tốt cho người lớn tuổi) được phân bổ khoa học, đảm bảo sự cân bằng giữa sinh hoạt chung và riêng tư.
Lên tầng 2, phòng sinh hoạt chung đóng vai trò là lõi trung tâm kết nối các không gian nghỉ ngơi. Hệ thống 4 phòng ngủ được thiết kế chú trọng tiện nghi cao cấp với WC khép kín và phòng thay đồ rộng rãi.
Cùng với phòng thờ trang nghiêm và khu giặt phơi kết nối trực tiếp ban công xanh mát, tổng thể mặt bằng mang đến một không gian sống sang trọng, thông thoáng và tiện nghi trọn vẹn cho gia chủ.
2. Mẫu mặt bằng biệt thự 2 tầng 2 mặt tiền
Sở hữu một lô đất có vị trí đắc địa với hai mặt tiền là một lợi thế vô cùng lớn mà không phải ai cũng có được. Thiết kế mẫu mặt bằng biệt thự 2 tầng 2 mặt tiền đòi hỏi sự tinh tế và am hiểu về phong thủy cũng như giao thông để khai thác tối đa lợi thế này.
Với hai mặt thoáng, ngôi nhà không chỉ đón được nhiều gió mát và ánh sáng tự nhiên hơn mà còn tạo nên một vẻ ngoài bề thế, vượt trội so với các công trình xung quanh. Đây thường là những mẫu biệt thự dành cho giới thượng lưu, những người coi trọng đẳng cấp và sự riêng tư ngay cả khi ở vị trí đông đúc.
.jpg)
Tầng 1 gây ấn tượng với sự phân khu chức năng rõ ràng qua trục sảnh chính và cầu thang trung tâm. Phía bên trái là không gian sinh hoạt chung thiết kế mở liền kề (phòng khách – bếp – bàn ăn) kết nối trực tiếp với dải sân vườn chữ L qua hệ thống cửa kính, giúp đón trọn ánh sáng và khí hậu tự nhiên.
Cánh phải ưu tiên cho các tiện ích và sự tĩnh lặng gồm gara, phòng làm việc (kèm WC) và một phòng ngủ Master.
Bước lên tầng 2, kiến trúc chuyển hướng hoàn toàn sang không gian nghỉ ngơi riêng tư với bố cục đối xứng hoàn hảo. Bốn phòng ngủ bao bọc lấy trục giao thông đứng (cầu thang, giếng trời) và phòng sinh hoạt chung ấm cúng ở giữa.
Hệ thống ban công lớn phía trước, ban công phụ phía sau cùng phòng thay đồ và khu vực WC chung được bố trí tinh tế, vừa tối ưu hóa diện tích vừa đảm bảo luồng sinh khí luân chuyển xuyên suốt. Tổng thể mặt bằng tạo nên một môi trường sống đẳng cấp, gắn kết nhưng vẫn vô cùng tự do, thoải mái.
3. Mặt bằng biệt thự 2 tầng 5 phòng ngủ
Đối với những gia đình đa thế hệ với ông bà, cha mẹ và các con, hoặc những gia chủ thường xuyên có khách ở lại, nhu cầu về số lượng phòng ngủ là rất lớn. Một mặt bằng biệt thự 2 tầng 5 phòng ngủ được xem là giải pháp kiến trúc tối ưu, vừa đáp ứng đủ công năng vừa đảm bảo sự thoải mái và riêng tư cho mọi thành viên.
Thách thức lớn nhất khi thiết kế mẫu mặt bằng này là làm sao để bố trí đủ 5 phòng ngủ một cách khoa học, không gây cảm giác chật chội, ngột ngạt, đồng thời vẫn phải đảm bảo đủ không gian sinh hoạt chung cho cả đại gia đình.
.jpg)
Mẫu bản vẽ mặt bằng công năng biệt thự 2 tầng 5 phòng ngủ.
Tầng 1 gây choáng ngợp với trục giao thông trung tâm gồm sảnh chính cao rộng kết nối cùng hệ cầu thang uốn cong nghệ thuật. Không gian được chia hai cánh rõ rệt: cánh trái là khu vực tiếp khách sang trọng liền kề với cụm Master Suite xa hoa (tích hợp phòng thay đồ và WC chuẩn resort); cánh phải là chuỗi tiện ích đa năng gồm gara đôi rộng rãi, phòng làm việc, khu giặt ủi và phòng bếp sở hữu đảo bếp trung tâm hiện đại.
Tầng 2 là bản hòa ca của sự gắn kết gia đình với “trái tim” là phòng sinh hoạt chung kết hợp khu vui chơi cực lớn, mở thẳng ra ban công mặt tiền bề thế. Bốn phòng ngủ (dành cho trẻ em, khách và thành viên khác) được bố trí cân xứng xung quanh, đi kèm hệ thống WC tiện lợi.
Điểm sáng giá nhất của toàn bộ kiến trúc là việc sử dụng dày đặc hệ “cửa sổ lớn” ở mọi mặt thoáng, giúp không gian luôn ngập tràn ánh sáng và khí trời tự nhiên.
4. Mặt bằng biệt thự 2 tầng sân vườn hiện đại
Cuộc sống đô thị ngày càng xô bồ khiến con người ta càng khao khát được sống chậm lại, hòa mình vào thiên nhiên. Đó chính là lý do mặt bằng biệt thự 2 tầng sân vườn hiện đại trở thành xu hướng được nhiều gia chủ ưa chuộng.
Không chỉ là một ngôi nhà để ở, đây còn là một ốc đảo xanh giữa lòng phố thị, nơi con người có thể tìm thấy sự bình yên sau những giờ làm việc căng thẳng. Thiết kế này đề cao sự kết nối tối đa giữa không gian sống và cảnh quan thiên nhiên xung quanh, biến khu vườn thành một phần không thể thiếu của ngôi nhà.
.jpg)
Tầng 1 được quy hoạch theo lối kiến trúc mở, ưu tiên tính kết nối và dòng chảy không gian. Từ sảnh chính, các khu vực chức năng như phòng khách, bếp và phòng ăn liên thông mạch lạc, mở tầm nhìn ra sân hiên gỗ và khu vườn sau với hồ nước hiện đại.
Việc bố trí phòng ngủ Master và phòng làm việc tách biệt giúp đảm bảo tính riêng tư, đồng thời tận dụng tối đa ánh sáng tự nhiên từ hệ thống sân vườn bao quanh như vườn thảo mộc và sân vườn bên hông.
Tầng 2 là không gian riêng tư dành cho gia đình với phòng sinh hoạt chung làm trung tâm. Ba phòng ngủ phụ được sắp xếp khoa học, mỗi phòng đều sở hữu ban công hoặc “vườn treo” riêng, tạo ra các khoảng đệm xanh mát. Điểm nhấn là sân thượng xanh rộng lớn và các khu vực lưu trữ được tính toán kỹ lưỡng, tối ưu hóa công năng.
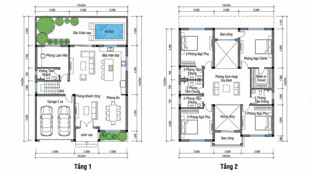
5. Mặt bằng biệt thự 2 tầng diện tích 14x23m
Với những lô đất vuông vức có diện tích vừa phải như 14x23m, việc tìm ra một giải pháp mặt bằng tối ưu là vô cùng quan trọng. Mặt bằng biệt thự 2 tầng diện tích 14x23m (tương đương khoảng 322m2) được đánh giá là một diện tích lý tưởng để xây dựng một căn biệt thự vừa đủ rộng rãi, vừa đảm bảo sự sang trọng mà không gây lãng phí không gian.
Trên diện tích này, các kiến trúc sư có thể thỏa sức sáng tạo, bố trí đầy đủ các công năng cần thiết từ sinh hoạt, nghỉ ngơi cho đến giải trí.
.jpg)
Mặt bằng biệt thự 2 tầng 14x23m hiện đại với tầng 2 công năng tiện nghi.
Tầng 1 được thiết kế theo lối mở (open-plan) nhằm xóa bỏ rào cản giữa các khu vực chức năng. Từ sảnh vào, phòng khách rộng lớn liên kết mạch lạc với khu vực bếp và phòng ăn, tạo nên một không gian sinh hoạt chung hoành tráng.
Điểm nhấn đặc biệt là hệ thống cửa lớn hướng ra sân vườn sau và hồ bơi, không chỉ giúp đón sáng tự nhiên mà còn tạo sự giao thoa hoàn hảo với thiên nhiên. Một phòng làm việc riêng tư cũng được bố trí kín đáo để đảm bảo sự tĩnh lặng.
Tầng 2 là không gian nghỉ ngơi ưu tiên sự riêng tư và gắn kết gia đình. Phòng sinh hoạt chung được đặt tại vị trí trung tâm, kết nối với phòng ngủ Master sang trọng và ba phòng ngủ phụ. Việc sử dụng các khoảng thông tầng và ban công lớn ở cả hai mặt giúp đối lưu không khí tối ưu, mang lại cảm giác thông thoáng và tràn đầy năng lượng cho mọi ngách ngách trong nhà.
6. Mẫu mặt bằng biệt thự 2 tầng 1 tum 10x40m
Đối với những lô đất có chiều dài lớn, hình dạng ống như kích thước 10x40m, giải pháp thiết kế mẫu mặt bằng biệt thự 2 tầng 1 tum 10x40m là một phương án cực kỳ thông minh để khắc phục nhược điểm về chiều sâu, đảm bảo lấy sáng và thông gió cho toàn bộ công trình.
Kiểu nhà này tận dụng tối đa chiều dài để phân bổ các khu chức năng một cách hợp lý, đồng thời tầng tum không chỉ là nơi đặt kỹ thuật mà còn là không gian sống trên cao đầy thú vị. Đây là mẫu thiết kế phù hợp với những gia đình có nhiều thế hệ sinh sống, cần nhiều không gian riêng tư.
Bản vẽ mặt bằng công năng biệt thự 2 tầng 1 tum.
Tầng 1 được thiết kế theo trục dọc mạch lạc, phân định rõ rệt khu vực đối nội và đối ngoại. Điểm nhấn kiến trúc độc đáo chính là “sân trong nhỏ” nằm tại trung tâm, đóng vai trò như một “lá phổi xanh” giúp đối lưu không khí và dẫn dắt ánh sáng tự nhiên vào sâu bên trong các phòng chức năng như bếp, phòng ăn và khu vực làm việc.
Tầng 2 là không gian nghỉ ngơi ưu tiên sự sang trọng và tính kết nối. Phòng ngủ Master chiếm diện tích lớn với đầy đủ tiện nghi cao cấp, trong khi phòng sinh hoạt chung được đặt ở vị trí trung tâm, tạo không gian đệm ấm cúng cho gia đình trước khi vào các phòng ngủ phụ.
Tầng tum là khu vực giải trí đỉnh cao, thể hiện phong cách sống thượng lưu với rạp phim tại gia, phòng karaoke, bar mini và phòng gym. Việc tách biệt các không gian ồn ào lên tầng cao nhất giúp đảm bảo sự tĩnh lặng tuyệt đối cho các tầng dưới.
Mỗi mẫu mặt bằng biệt thự 2 tầng đều mang trong mình những ưu điểm riêng, phù hợp với từng nhu cầu, sở thích và điều kiện thực tế của mỗi gia đình. Dù bạn yêu thích phong cách nào thì việc có một bản vẽ mặt bằng chi tiết, khoa học là bước đệm vững chắc nhất cho một công trình bền vững và đẳng cấp.
Với hơn 10 năm kinh nghiệm trong lĩnh vực tư vấn, thiết kế và thi công,Nhà Huế tự hào là đơn vị tổng thầu xây dựng uy tín, đồng hành cùng bạn trên hành trình kiến tạo tổ ấm. Đội ngũ kiến trúc sư tài năng và giàu nhiệt huyết của chúng tôi luôn sẵn sàng lắng nghe, thấu hiểu và biến những ý tưởng của bạn thành hiện thực thông qua những mẫu mặt bằng thông minh, tối ưu công năng và thẩm mỹ.
Chúng tôi không chỉ đơn thuần là xây nhà, mà còn xây dựng những giá trị sống bền vững, dựa trên sự hài lòng của quý khách hàng – kim chỉ nam cho mọi hoạt động của Nhà Huế.Nhà Huế cung cấp dịch vụ trọn gói, cam kết mang đến cho bạn mức giá tốt nhất đi kèm với chất lượng thi công hoàn hảo, đảm bảo ngôi nhà của bạn không chỉ là một nơi ở mà còn là một tác phẩm nghệ thuật trường tồn với thời gian. Hãy liên hệ ngay với Nhà Huế để được tư vấn và sở hữu mẫu mặt bằng biệt thự 2 tầng ưng ý nhất!

.jpg)