Công trình nhà 1 tầng hiện đại của gia đình chị Nhi
Thông tin công trình:
Phối cảnh công trình:
.jpg)
.jpg)
Điểm nhấn lớn nhất là các góc tường và phần mái hiên được bo tròn, tạo cảm giác nhẹ nhàng, thanh thoát thay vì những góc cạnh vuông vức thô cứng của nhà phố truyền thống.
-
Mái bằng giật cấp: Hệ mái được thiết kế phân tầng, tạo chiều sâu và giúp ngôi nhà trông cao ráo hơn. Phía trên có họa tiết đục lỗ hình lá, vừa tạo điểm nhấn thẩm mỹ vừa giúp lấy sáng tự nhiên.
-
Sự kết hợp hài hòa giữa màu trắng chủ đạo, màu xám ghi của mảng tường chính và màu nâu ấm của gỗ ốp trần.
-
Gỗ ốp trang trí: Phần trần hiên và mảng tường dọc bên trái được ốp gỗ (hoặc vật liệu giả gỗ), mang lại cảm giác sang trọng và gần gũi với thiên nhiên.
-
Hệ cửa kính: Cửa chính là hệ cửa 4 cánh khung nhôm xám kết hợp kính cường lực, phía trên có vòm cong đồng bộ với thiết kế tổng thể, giúp tối đa hóa ánh sáng vào không gian nội thất.
-
Hệ thống đèn LED âm trần, đèn hắt tường và đèn sân vườn được bố trí khéo léo, làm nổi bật các khối kiến trúc và vật liệu vào buổi tối.
-
Không gian xanh: Bồn cây nhỏ phía trước với các loại cây lá kim và cây bụi giúp điều hòa không khí và làm mềm không gian sân trước.
-
Bậc tam cấp: Được thiết kế rộng, ốp đá đen vân mây sang trọng, tạo lối dẫn trang trọng vào nhà.
-
.jpg)
-
Từ góc nghiêng, ta thấy rõ mảng tường trắng bao quanh mặt tiền được uốn cong mềm mại từ trên xuống dưới, tạo thành một chiếc "khung" ôm lấy sảnh chính.
-
Mái vát điệu đà: Phần mái phía trên không chỉ là mái bằng mà còn có độ dốc nhẹ và các đường cắt vát nghệ thuật. Họa tiết hình lá đục lỗ ở phần áp mái giúp công trình trông thanh thoát và có điểm nhấn riêng biệt.
-
Sự phân tầng: Các mảng khối được giật cấp rõ rệt: mảng gỗ ốp lùi sâu vào trong, trong khi khung trắng đưa ra ngoài, tạo hiệu ứng thị giác về chiều sâu và bóng đổ rất đẹp mắt.
-
Khác với mặt tiền, phần hông nhà bố trí các cửa sổ kính lớn với hình dáng vòm cao. Điều này không chỉ giúp lấy sáng tối đa cho không gian bên trong mà còn tạo sự đồng nhất về ngôn ngữ thiết kế "đường cong" của toàn bộ ngôi nhà.
-
Kết nối không gian: Việc sử dụng kính suốt từ trần đến sàn ở các vị trí chiến lược giúp xóa nhòa ranh giới giữa bên trong và bên ngoài, làm cho ngôi nhà trông rộng rãi hơn diện tích thực tế.
-
Góc nhìn này lộ diện bồn cây chạy dọc theo chiều dài sân, trồng các loại cây lá lớn (như chuối cảnh hoặc đại phú gia) kết hợp bụi thấp. Sự tương phản giữa màu xanh của lá cây và màu trắng xám của tường tạo nên sự dịu mắt, thư thái.
-
Phần sân được lát gạch xám tối màu, làm nền cho bậc tam cấp đá đen bóng và các dải đèn LED chạy dọc dưới chân bậc, vừa đảm bảo an toàn vừa tăng vẻ sang trọng.
-
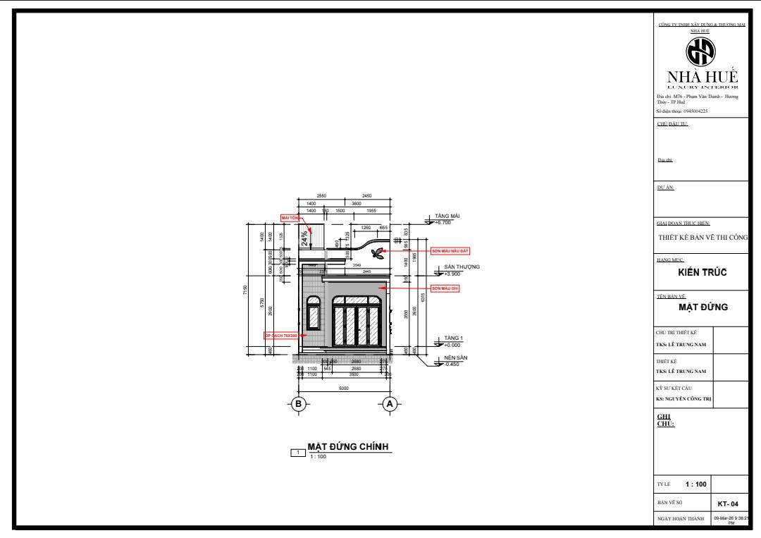
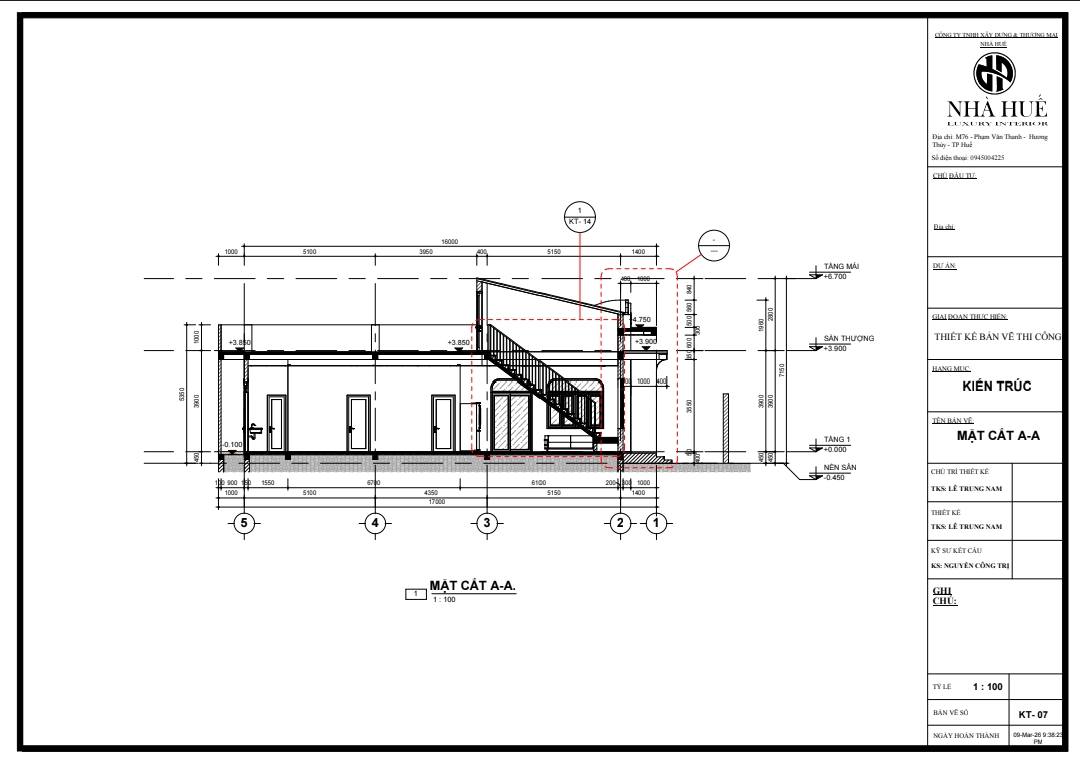
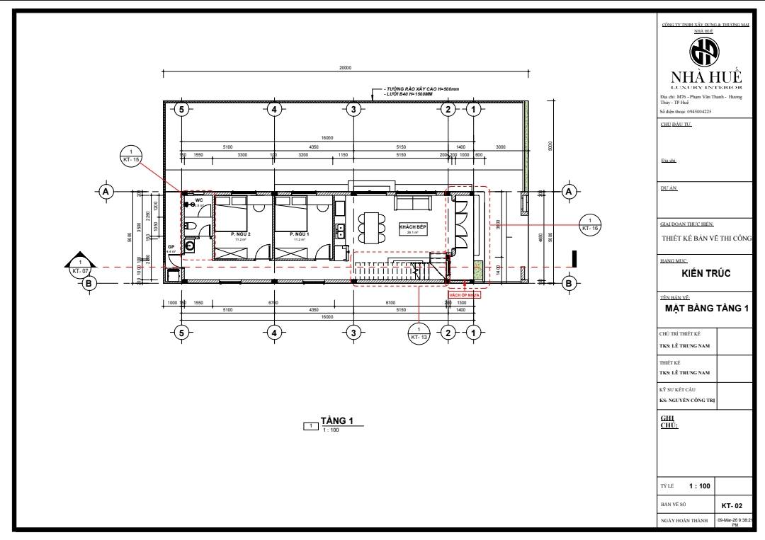
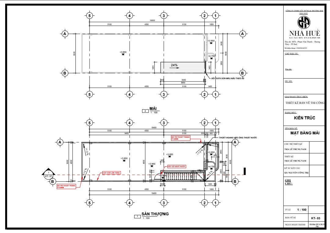
Mặt bằng các tầng:
-
.jpg)
-
.jpg)
-
.jpg)
-
.jpg)
-
.jpg)
-
.jpg)
-
.jpg)
-
Có những ngôi nhà được xây bằng gạch đá, nhưng cũng có những ngôi nhà được xây bằng cả một hành trình nghị lực.Người ta vẫn nói "Đàn ông xây nhà , đàn bà xây tổ ấm", nhưng với chị – một người mẹ đơn thân nuôi hai con nhỏ – chị đã kiêm luôn cả vai trò người thợ xây nên ước mơ cho đời mình. Sau bao nhiêu năm tháng chắt chiu, chịu khó, từ những ngày gian khó nhất, ước mơ về một mái ấm nhỏ xinh cuối cùng cũng đã thành hiện thực.Thấu hiểu được nỗi lòng và sự hy sinh thầm lặng ấy, đội ngũ NHÀ HUẾ đã đặt trọn tâm huyết vào từng viên gạch, góc sân.Không chỉ là một ngôi nhà "nhỏ nhỏ xinh xinh".Mà là một tổ ấm tràn đầy hơi ấm và sự bình yên cho ba mẹ con.Cảm ơn chị đã tin tưởng để NHÀ HUẾ được đồng hành kiến tạo nên hạnh phúc này!Hiểu từng sự lo toan của chị để dựng nên một công trình không chỉ bền bỉ với thời gian mà còn đong đầy cảm xúc. Chúc mừng chị và các cháu đã có một "bến đỗ" tuyệt vời!
